Tillbaka
Villa SK1 (svart/beige)
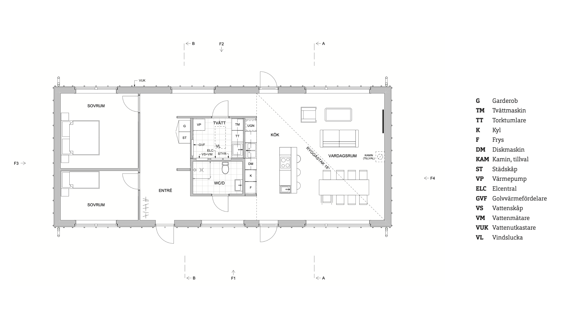
Enplansvilla med boarea på 112 m2. Det är möjligt att välja till garage/förråd. Villan kan även byggas ut med drygt 29 m2. Välj bland annat mellan fler sovrum, kontor, större vardagsrum eller orangeri. Groventré finns också som tillval.
Pris: 3 499 000 krBOA: 112 kvm


